Не Горит Подсветка Номера Мазда 3 bk – Переходники для iso разъемов
Рекомендации по обслуживанию монтажного блока
- Периодически проверяйте состояние предохранителей, при необходимости заменяйте их новыми;
- После долгих поездок по лужам, под дождем проверьте отсутствие влаги, конденсата в монтажном блоке. Просушите стол струей сжатого воздуха;
- Устанавливайте модули с одинаковой силой тока (силой тока). Не превышайте (недооценивайте) Ампер;
- Если механизм вдруг перестал работать, не спешите заменять его на новый. Проверить состояние модуля, использовать для диагностики мультиметр;
- Во время профилактического обслуживания проверяйте качество крепления клемм, концевых выключателей. При необходимости затяните плоскогубцами.
Несмотря на внешнюю простоту конструкции монтажного блока, диагностические работы проводить на СТО. Непрофессиональное вмешательство в ремонт приводит к нежелательным последствиям.

| 1 | — |
| 2 | Реле омывателя фар |
| 3 | Реле заднего противотуманного света |
| 4 | — |
| F77 | (30A) Вентилятор охлаждения |
| F78 | (30A) Вентилятор охлаждения |
Расшифровка значков на приборной панели
Сообщающие о неисправности

Как мне найти предохранитель для освещения номерного знака моей Mazda 3?
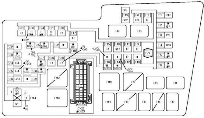
- R1-R9, R15, R16, R20 — не задействованы;
- R10 — блокировка АКПП;
- R11, R12 — I и II обороты дворников;
- R13 — дальний свет передней оптики;
- R14 — габаритные огни Mazda 3 BK;
- R17, R18 — цепи для запирания и отпирания замков дверей;
- R19 — дворники задние.
Блок предохранителей и реле Mazda 3 Представим список наиболее часто возникающих вопросов и расшифровку, что означает горящий значок на панели.
Предупреждающие значки на панели
Значок руль может загораться в двух цветах. Если горит желтый руль, то требуется адаптация, а при появлении красного изображения рулевого колеса с восклицательным знаком, уже стоит обеспокоиться отказом системы ГУР или ЭУР. Когда светится красный руль, то наверняка Ваше рулевое колесо стает очень трудно поворачивать.
Значок иммобилайзера, как правило, моргает, если автомобиль закрыт; в таком случае индикатор красного автомобиля с белым ключом сигнализирует о работе противоугонной системы. Но существует 3 основных причины если лампочка иммо постоянно горит: иммобилайзер не активирован, если не считывается метка с ключа или система противоугона неисправна.
Значок ручника загорается не только в том случае, когда активирован (поднят) рычаг ручного тормоза, но и в тех случаях, когда износились тормозные колодки или нужна доливка/замена тормозной жидкости. На авто с электронным ручником лампочка стояночного тормоза может загораться по причине глюка концевика или датчика.

Предохранители и реле Мазда 3 BK
Распиновка разъема магнитолы по цветам проводов В этом случае простая замена лампы решит проблему на Mazda 3. Вы можете провести тест, заменив лампочку, и таким образом проверить результат. Если ничего не изменится, возможны несколько вариантов.
Проблема с освещением номерного знака моей Mazda 3
Если поиск и замена предохранителя освещения номерного знака не устранили проблему, вам следует подумать об этом. ваша лампочка перегорела.
Неужели проблема с предохранителем в подсветке номерного знака моей Mazda 3?
В этом случае простая замена лампы решит проблему на Mazda 3. Вы можете провести тест, заменив лампочку, и таким образом проверить результат. Если ничего не изменится, возможны несколько вариантов.
Если дело не в лампочке, давайте посмотрим на другие типы проблем:
Сначала возможно, что ваш блок BSI неправильно откалиброван, и чтобы он больше не посылал необходимую мощность для зажигания. Его миссия — отправить электрические сигналы к различным функциям Mazda 3, чтобы они выполнялись. В гараже можно провести несколько быстрых и простых тестов, чтобы убедиться, что Mazda 3 работает правильно.
Проблема с корпусом BSI на моей Mazda 3: больше нет подсветки номерного знака
Обязательно знать, предохранитель подсветки номерного знака на вашей Mazda 3 не только соответствует этой функции. Другими словами, если у вас просто неисправность именно с этим освещением, то ваша вина не в этом предохранителе, что является обычным явлением.
Если, однако, габаритные огни не работают или вы замечаете другие одновременные поломки на вашей Mazda 3, то, скорее всего, это связано с соответствующим предохранителем.

Что такое iso
- Посмотри на водительскую сторону, слева над твоими ногами
- другой вариант под капотом рядом с аккумулятором.
- Третий вариант, под перчаточным ящиком, сняв пластиковую крышку, защищающую предохранители.
Распиновка для различных марок авто и магнитол
7.3.7 Снятие и установка газоразрядной лампы фары
ВНИМАНИЕ Неправильное обслуживание газоразрядных фар может привести к поражению электрическим током. Отсоедините отрицательный провод от аккумуляторной батареи. Отсоедините переднюю комбинированную фару. Рис. 7.28 . Порядок снятия компонентов газоразрядной фары: 1 .
